Vorankündigung: Traumhaftes Büro mit Stuck und Parkett in Passau Zentrum – Denkmalschutz
Eckdaten
- Art Bürofläche
- Lage 94032 Passau
- Miete zzgl. NK 920,00 €
- Warmmiete 1.120,00 €
- Nebenkosten 200,00 €
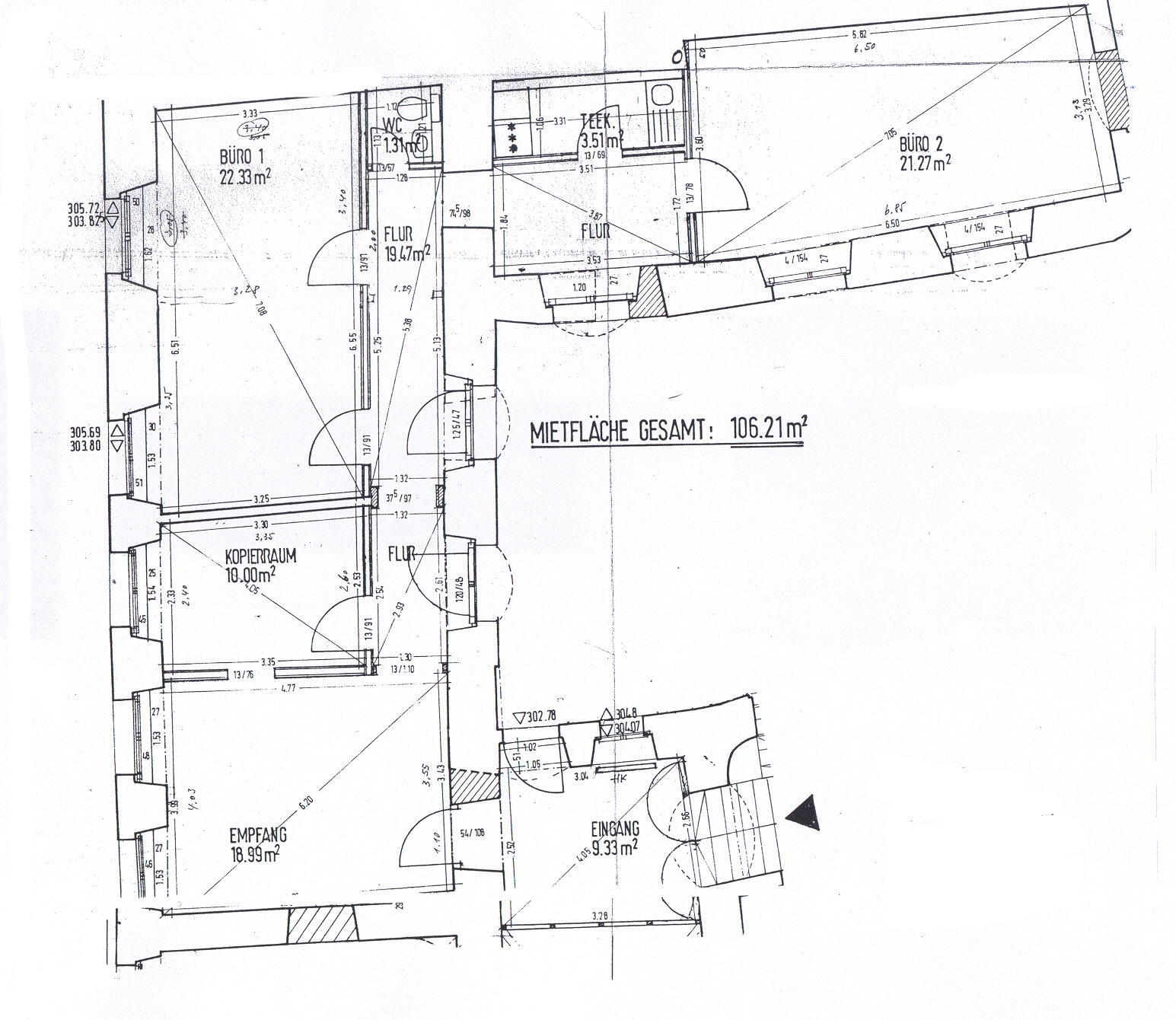
- Bürofläche ca. 106 m²
- Zimmer 5
- Baujahr 1890
- Etagenzahl 3
- Etage 1
- Denkmalschutzobjekt ja
- Heizungsart Zentralheizung
- Einbauküche ja
- Stellplatztyp Tiefgarage
- Garagenanzahl 1
- Kaution 1840 €
- Garagenmiete 110,00 €
- Aufzug ja
- Bezugstermin 01.05.2026
- Fahrzeit Hauptbahnhof 5 min
- Fahrzeit nächste Autobahnauffahrt 10 min
- Fahrzeit nächster Flughafen 90 min
- Bodenbelag Parkett
- Zustand Saniert
- Immobilien-ID 120456582
Immobilie
Superhelle und sehr ruhiges Büro in der Fußgängerzone, denkmalgeschützter und wunderschön sanierter Altbau mit hochwertiger Ausstattung. Der Eingang ist sehr repräsentativ mit einer schönen Doppelflügeltüre, Naturstein und mit Stuck verziertem Kreuzgewölbe, die Büroräume haben teilweise ein umlaufendes Deckenfries und der Balkon hat mehrere Zugänge.
Lage
Die Büro-/Praxiseinheit ist in der Fußgängerzone – Wittgasse 7. ÖPNV sowie alle Geschäfte sind bequem zu Fuß zu erreichen. Die nächstgelegenen Kundenparkplätze unter der Schanzlbrücke sind nur wenige Meter entfernt.
Ausstattung
Parkettboden, Naturstein, hochwertige Einbauküche, Massivholztüren, Stuckdecke, Balkon
Sonstiges
Ein Energieausweis ist aufgrund der Denkmaleigenschaft nicht notwendig. Ein Stellplatz in der hauseigenen Tiefgarage kann bei Bedarf zusätzlich angemietet werden.
Alle im Exposé genannten Preisangaben sind Nettoangaben jeweils zuzüglich der gesetzl. MwSt. (derzeit 19%).
Energieausweisangaben
- Heizungsart Zentralheizung
Herzlichen Dank für Ihre Anfrage.
Wir werden diese so schnell wie möglich bearbeiten.









